一品楼ypl论坛,一品凤楼论坛的官网入口,辽宁楼凤论坛qm,一品楼免费论坛

如今充气柜市场发展趋向与前景

发布时间:2021-06-01 11:11:32

一、充气柜的概念

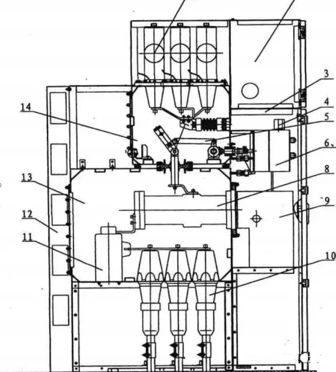
充气柜是气体绝缘金属密封式开关设备的一种简称。世界简称GIS或者C-GIS。一般用在10KV及以上的输配电体系以接受或分配电能并能对电力体系正常运转和毛病情况下实行控制、维护、测量、监视、通讯等功能的新式开关设备。目前国内充气柜的绝缘介质主要是SF6,N2、压缩的干燥空气、或者SF6与氮气的混合气体,别的国外的G3气体等等。充气柜是在空气绝缘金属密封开关设备基础上,使用新的绝缘材料并与密封技能有机结合的一种开关设备,将各种高压元件及母线密封在密封的不锈钢气箱内,充入较低压力的绝缘气体,使之具有免维护并不受外界环境影响。别的随着国土资源的稀缺性,它占地面积小也受广阔用户的共同认可。


二、充气柜的历史背景

充气柜最早是上世纪七八十时代日本首先开发研发的,随后世界各国先后开宣布相应产品,主要电压等级在7.2-126kV;最早一切母线,元器件,互感器等等都装在密封箱内内,到了90时代24-36kV的充气柜有了迅猛的开展,互感器之类的以放置于气箱外面,固体界面绝缘技能现已运用于高压元件插接。而我国应该也是在90时代开端引入及使用该类技能,(详细时间不详)此后经过十年左右的开展,充气柜逐渐得到用户的广泛认可,国内部分厂家大概在2000年左右经过引入国外技能、中外合资等手段抢占国内市场。国外知名厂家主要有ABB、西门子、Althom、施耐德、日立、三菱等,一切大电气公司都有7.240.5kVC-GIS,并完成产品全系列化。在20002010的十年里充气柜的绝缘技能,散热技能,密封技能,真空灭弧室的开断技能,焊接技能以及数字化控制、维护、监视技能都有了迅猛的开展。

三、充气柜在国内的主流产品有哪些?

充气柜中以12kVSF6环网柜在我国运转的最为广泛,目前国内的SF6环网柜主流产品是8DH系列和SIMOSEC型,ABBRGC型、Uniswitch型、SFG型及Safering型和Safeplus型,Schneider公司的RM6SM6型,葡萄牙易发公司的Normofix型,VEI公司的UNIFLUORC型,Areva公司的FBX、Fluokite24型,日本东芝的VRM1型,德国Drischer公司的MINEX型及ORMAZABAL公司的CGM型等。

  

西门子8DH系列

 

ABBsafe系列

 

施耐德RM6系列

 

ORMAZABAL

经过多年运行国内以西高所为首的厂家开始了自主研发和联合设计开发的路程,主要的代表性产品有联合设计的产品如HXGN6型、HXGN9型、XGN15型等,自主开发的产品如HXGN1型、HXGN2型、HGN24型、HXGN26型、XGN68型等。
40.5kv的国外产品主要是ABBZX0、ZX1ZX2,西门子的8DH10NXPIUS,三菱公司的20-GX,30-GX其他的还有东芝、AEG、瑞士SE、意大利的MGAlstom等下图为ABBZX2和西门子的NXPIUS

 

ABBZX2系列

 

西门子的NXPIUS

国内则主要是西安森源联合开发的GZX系列,额定电流在2500A及以下,其结构如下图:(目前市场上主要是侧扩和顶扩,单气室,双气室,三气室的等)国内代表性厂家主要有常州太平洋,宁波天安,正泰,顺德开关等。

 

 

 

四、洗牌中的中小企业如何在这场战斗中活下来

2014年下半年国网开始推行环保型充气环网柜,由于国内充气柜厂家过多,市场竞争过于激烈,各种产品质量参差不齐。另外整个行业的欠款,拖款严重,导致很多厂家没有能力和余钱再发展。然而国网又推出“一纸证明”的门槛,这将让国内开关行业进行一次较大范围的洗牌。那么在这场战斗中我们如何夹缝中求生存呢??匦幸等绾味裙庋难隙?/span>?以下是小编一些个人想法仅供大家参考:

目前企业摆脱困境需要认真考虑的问题。相对于充气柜产品来说,如何做到利润最大化?总结来说就是降本增效。细化来说可分为:一、靠现代化的管理来降低成本;二、靠过硬的质量来降低成本;三、靠产品技术优化来降低成本。

首先我们知道企业成本主要有人力、固定资产、产品材料等等。充气柜的生产需要哪些投入呢?

 

2、人力成本投入

随着整个国家用工本钱的不断进步,电气企业用工本钱也成为企业的一大担负,因而企业必须在经营管理的各环节进步功率、优化资源配置,而在产品出产过程,企业应不断的整理优化产品出产的各个工艺环节,做到出产人员的最合理配置。别的出产设备的更新换代、大量工装、东西的运用也是进步出产功率最有效的手法之一。

二、技能优化降本。1、关于熔丝筒的长改短,资料本钱下降,并可省去适配器的本钱,此计划经过验证牢靠性较高,现在大多数出产厂家也已施行;2.气箱结构的改善,纯C单元气箱高度减小240mm,可节省不锈钢板用料本钱和SF6气体本钱,此计划经验证牢靠性较高,现在大多数出产厂家也已施行;3.联锁方法的改善,由本来的拉绳联锁改为硬联锁,柜体悉数选用钣金件,此计划联锁牢靠、装置方便;4.铜质主母线截面积减小,此计划经验证牢靠性较高,可满足回路电阻和温升试验要求。有些厂家为了到达更大的降本作用,还采取了比方将触头镀银层减薄、铜质母线改为铜包铝母线、气箱不锈钢板资料由3mm304改为2mm201等办法,但这些办法或许存在比较大的安全隐患,应慎重运用。

别的,出于对环境的考虑,环保气体柜是现在充气柜开展的大方向,企业想立于不败之地,环保气体柜的开发是刻不容缓的,只要这样才不会又输在起跑线上。而环保气体柜结构计划的选择尤为重要,小编以为,环保气体柜应选用电场结构优化的手法来到达减小电气空隙的目的,而不是选用环氧包覆等手法。相反,开关元件应尽量防止环氧等资料的运用,否则又走回固体绝缘结构的老路。别的,环保气体柜应能承受零表压的考验,比空气柜到达相同或许更优的功能要求。一起环保柜的开发出产工艺较之SF6更为严厉,因而,在国、南网真正大力推行环保柜前,并且SF6充气柜赢利空间极度低下的情况下,在16SF6制作企业又迎来一个大迸发,国内又增加一大批充气柜制作厂家。信任他们的目的也是在为将来的环保柜打基础,因而更应该注重产品工艺,确保产品质量。