一品楼ypl论坛,一品凤楼论坛的官网入口,辽宁楼凤论坛qm,一品楼免费论坛

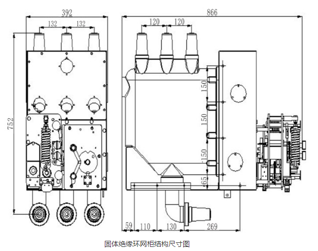
环网柜的机芯结构与产品特点

发布时间:2021-06-11 10:24:34

环网柜的机芯是由真空灭弧室、固体绝缘系统、三工位刀闸、操作机构等几个比较重要的部分组成。其中,各个部分都有其自身的性能特点:

 

1、真空灭弧室:

环网柜的真空灭弧室中主要元器件是真空断路器,真空断路器具有开断短路电流能力,用于电路和电气设备的过载和短路?;ぁR蚱浯ネ房嘈?,燃弧时间短,触头一开断故障电流时烧伤轻微,所需的操作能量小,动作快等特点,它同时还具有体积小,重量轻,维护工作量小,能防水、防爆,操作噪声小的优点,是替代油断路器和SF6断路器的理想断路器,广泛用于电力、冶金、通讯等行业的高频加热等配电系统。断路器用真空灭弧室是真空断路器的关键部件,是真空断路器的心脏,它基本上解决了断路器的主要性能。

2、固体绝缘系统:

环网柜的固体绝缘系统采用APG工艺成型的固封极柱将真空灭弧室和上下出线座等载流导体封装成一个整体。隔离开关安装在固封极柱的腔体内,使得相间绝缘以固体绝缘方式为主绝缘方式。单相母线可扩展设计,实现功能单元无线扩展。

3、三工位刀闸:

所有开关柜配有三工位刀闸。三工位刀闸与主开关一同内置于固封极柱内。三相联动,可操作实现工作/隔离/接地三个位置。与主开关采用了机械联锁,只有在主开关处处于分闸位置时,三工位刀闸才能动作,另外三工位机构工作和接地位置也能实现互锁,当刀闸处于工作位置时,接地侧孔被锁?。旱钡墩⒋τ诮拥匚恢檬惫ぷ鞑嗫妆凰?。

4、操作机构:

环网柜的断路器操作机构为弹簧操作机构,有着结构简单、动作可靠、体积小巧、免维护等特点,合闸功大小可根据用户要求上下调整,机构可以手动储能、手动合闸、手动分闸,也可以电动储能、电动分合闸,方便用户操作。