一品楼ypl论坛,一品凤楼论坛的官网入口,辽宁楼凤论坛qm,一品楼免费论坛

一二次融合环网箱中环网自愈系统的介绍

发布时间:2021-09-24 13:44:41

对于全年7*24小时不间断营运的机场而言,各区域内各类系统的可靠运行至关重要,而这些系统的正常运转都有赖于高度可靠的电力供应。在飞行区,包括灯光系统的正常运行对于飞机起落、地面人员安全有序工作等都极为重要。因此,飞行区的供电系统对可靠性要求更加严苛,无论是设备,网络架构,还是故障断电恢复时间,都需要达到近乎极致的标准。

为此,针对机场飞行区对供电的特殊要求,基于成套环网箱的一二次融合环网箱理念开发,搭载分布式智能配电终端的环网自愈系统,不但能够自动且精准发现供电系统故障点,快速恢复送电,还能实现工厂按需装配,现场快速安装,极大提升可靠性,并节省安装时间和空间,提高效率。

机场飞行区供电系统特点
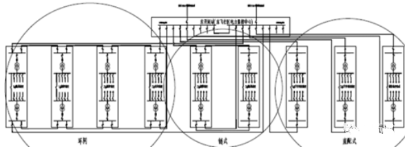
在机场飞行区10kV供电系统中,一次网络拓扑结构以双侧电源供电具有正常断开点的单环网、单侧电源供电的链式网络和直配式网络为主。因此,单环网供电方式,以及以成套环网箱为代表的设备,在机场围界箱等变等应用场景中广为采用。

 

这种网络拓扑结构在带来网架优化优势的同时,也在逐步提高供电可靠性要求的背景下迎来新的挑战:

1)如何快速定位、隔离供电网络中的故障元件?

2)如何快速恢复供电网络中受到停电波及的非故障元件的供电?

即在选用高品质开关设备、优化网络拓扑结构基础上,如何通过电源自动切换的方式最大限度缩短系统恢复时间,以提高供电系统可靠性。

 

一二次高度融合系统满足需求


为解决这些难题,在机场飞行区应用能够实现一二次融合环网箱的成套环网箱已成为重要趋势。成套环网箱存在两个发展阶段:一二次成套阶段及一二次融合环网箱阶段。实现一二次设备高度融合,可以满足就地型馈线自动化,单相接地故障检测,装置级互换,工厂化维修,即插即用和自动化检测的要求,解决成套设备绝缘配合,电磁兼容,寿命匹配等问题,还可以实现电气监测、状态监测、电质量监测、区域自治等各类开放功能。
施耐德电气针对此类应用场景开发的分布式DTU和高品质开关设备配合,目前已经跨越了一二次成套阶段,进入一二次高度融合阶段?;诔商谆吠?/span>一二次融合环网箱理念的分布式DTU环网自愈系统,在优化的网络架构中嵌入高品质开关设备作为关键节点,同时搭载分布式DTUEasergyT300智能配电终端,应用??榛杓?,实现单环网供电系统环网自愈功能,约30秒内实现故障的快速切除以及恢复送电,解决上述难题。该系统的主要功能单元包括:

1一个管理单元HU250(主??椋涸鹩?/span>SCADA系统通讯并管理功能???;

2若干功能模块SC150LV150(子??椋?,分布式安装于各环网柜功能间隔;

3电源管理???。

 

1– 分布式T300框架简图实现环网自愈的核心组件”——DTUEasergyT300

作为这套高度智能化系统的的核心“组件”,施耐德电气分布式DTUEasergyT300发挥着重要作用,其采用面向间隔功能的??榛杓评砟睿植及沧霸诟鞲龌吠竦ピ?,就地方便地实现每个开关柜的运行状态检测、控制和交流模拟量采样测量。T300模块和实物间隔一一对应,避免传统DTU按错间隔的可能性,提高标准化程度,即插即用,实现一二次融合环网箱。T300解决方案具有灵活的架构和扩展性,当环网柜扩展间隔或功能改变,能够随之扩展和调整。

T300可以实现分布式馈线自动化功能,提升供电可靠性。T300智能终端可在现有的通讯网络(PON,GPRS,4G等等)上,采用对等通讯技术,构建环网自愈SHG通讯体系。其核心自愈算法久经考验,在全球多个项目中使用,可以应对不同的网架结构(多环/多分支),适用于多种环网柜型(参数可调),具有较高的容错性。在此基础上,基于环网自愈研判结果与系统中各种设备感知数据的分析与应用,还能够推动用户运维模式的转变,使主动抢修,抢修服务质量的提升,供电可靠性的提高及运营理念由电网为中心向以客户为中心的转变成为可能。

 

响应供电网络发展需要,整套系统可满足机场飞行区“平安”建设要求

该套系统的子??榫弑钢醒箍氐募嗖夂涂刂乒δ?,并通过接入3I+I03U,可对每个环网间隔的电流、电压、功率、电能质量以及故障进行实时检测,另可集成温度,局放等在线状态监测功能,实现设备故障预警,减少现场运维工作量,并有效减少了非计划停电时间。

而通过在环网进线负荷开关柜布置T300的自愈方式,将能够实现更低成本的环网自愈。具体而言,在机场飞行区供电网络建设中,变电站两路出线带若干个开闭所组成一个环,变电站外出线隔离站及每个环网站节点各配置一台T300装置,以对等通讯方式实现故障区段自动定位、故障区段自动隔离非故障区段自动恢复供电,使供电网络故障实现全自动化快速处理,约30秒内实现故障的快速切除以及恢复送电,达到世界一流的配电自动化水平。

 

2-环网自愈系统图

解决传统集中式DTU安装、运行、维护的弊端

正是基于这种分布式DTU和环网设备的高度融合,整套系统可以实现“工厂化装配送,机械化施工的方式”,这也就意味着在施工现场只需一次设备安装,无需二次接线,就能够具备配网自动化功能,优点在于一次建设到位,整体美观,并大大提高整体设备的标准化和可靠性,此外,现场配网自动化调试时间也可大大缩短,提高现场安装效率。

在改造项目中,还可节省安装空间。通过使用三遥监控单元,把旧有的环网柜改造成带三遥远传的智能环网柜,并无需扩建,既实现了旧有环网柜的配网自动化三遥功能的应用并且得到了智能化升级,也解决了安装体积大,接线复杂,停电时间长等问题。

随着应用推广、使用年限增加,成本将进一步下降

在材料方面,由于集成了故障指示器功能,环网间隔上无需另外配置独立故障指示器,同时,子??榫偷匕沧坝诨吠涓?,大大减少了连接电缆。

工厂安装,现场施工时间大幅度降低,并降低了现场的管理成本。子??榈目焖偬婊恍?,更进一步减低了后期维护成本。但对于后期运维人员,需要掌握新型的运维方式,以及学习智能化程度更高的设备运行规范,对运维人员的要求也进一步提高。对于分布式DTU的应用,已列入2017版国家电网公司重点推广新技术目录。分布式DTU的推广应用,契合国网的要求,协助实现世界一流城市配电网的建设,进一步提高供电可靠性,并实现智能运检的发展要求,设备选型一步到位,建设工艺标准化。

机场飞行区供电网络无论从网架结构、对供电可靠性的要求,还是运维的要求,都与电网公司对配电网络的要求高度一致,已经在国家电网取得良好运营经验?;诔商谆吠湟欢稳诤匣吠?span>理念的分布式DTU环网自愈系统将会为“四型机场”建设提供更为优化的建设方案。