一品楼ypl论坛,一品凤楼论坛的官网入口,辽宁楼凤论坛qm,一品楼免费论坛
VIP热线:158 5875 8225
收藏本站
|
设为首页
网站首页
关于我们
产品展示
光伏并网配电设备
空气绝缘环网柜
SF6充气柜.固体柜.环保柜
环网箱(电缆分支箱)
矿用开关柜设备
高低压成套设备
新闻资讯
公司新闻
行业动态
产品百科
营销网络
企业文化
生产车间
联系我们
光伏并网配电设备
空气绝缘环网柜
SF6充气柜.固体柜.环保柜
环网箱(电缆分支箱)
矿用开关柜设备
高低压成套设备
当前位置:
首页
>
产品中心
>
高低压成套设备
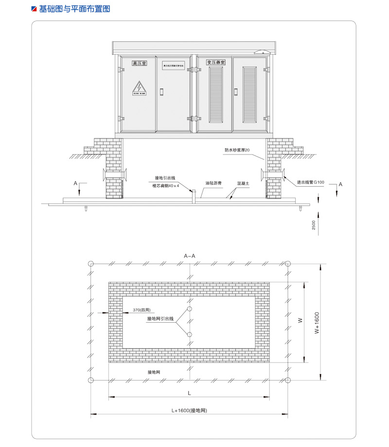
> YB-12预装式箱式变电箱(欧式)
产品详情
相关产品
预制舱式变电站
预制舱式变电站
高压柜KYN28-24
动力柜XL-21
网站首页
关于我们
产品中心
新闻中心
营销网络
生产车间
联系我们
158 5875 8225
版权所有:浙江凝聚电气有限公司
备案号:
浙ICP备2021002653号
微信二维码