一品楼ypl论坛,一品凤楼论坛的官网入口,辽宁楼凤论坛qm,一品楼免费论坛

环网柜的运输交付规范,以及环网柜的日常维护操作注意事项

发布时间:2021-05-31 11:17:38

操作维护

1运输及贮存

 

▲运输

运输过程不允许有强烈震动,不允许倒置、翻滚开关

  

▲开箱检查

开箱前,应对环网柜的包装及运输过程中有否损伤进行检查;开箱应在干燥不受林雨的场所进行拆箱时注意?;げ?/span>,避免损伤:开箱后,应及时进行外观检查,检查各元件有无破损,有无进水或严重受潮现象,检查玉力表指示是否正常,检查配件是否与装箱单或订货单相符。

  

▲贮存,应存放在通风良好,并能防止各种有害气体侵入的场所禁与化学药品、酸碱及蓄电池等保存同仓库里。

2安装及试验

 

▲环网柜配电方案

2.1环网柜资料

a.安装使用说明书;

b.所选用的主要电器元件的说明书;

c.产品合格证;

d.产品出厂试验记录;

e.装箱单;

f.环网柜排列图、二次接线图。

2.2安装与调整

 

▲安装与调试

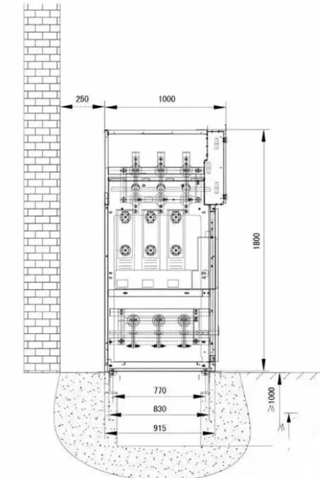
地面基础施工应符合“电力建设施工及验收技术规范”中的柜与槽钢连接的规定。

安装时按环网柜先后顺序排列在地基的槽钢上,将柜体靠紧,并用螺栓固定旋紧,柜面应排列整齐,柜顶与屋顶的距离应大于600mm。

环网柜底部设有电缆接线端子,将三芯电缆或单芯电缆压接上接线端子,并与环网柜的接线端子连接后用螺栓拧紧。

各柜的母线室内装上主母线,并用螺栓固定旋紧,在固定的搭接面上需经表面搪锡处理。

环网柜的主接地与配电室的接地线连接,该连接应能承受短路引起的热机械应力,能保证接地回路的连续性。

安装完毕后,将开关元件及防误操作机构进行5次分、合闸,如未发生异常现象,则认为开关机械操作正常。

2.3试验

 

▲试验

外观检查

主回路电阻测量

机械操作和机械特性测量试验

绝缘电阻试验

主回路1min工频电压试验

保护装置试验

“三?!奔觳猓ㄗ远吠瘢?

互感器试验

蓄电池试验

2.4维护

 

▲维护

1.环网柜在下列情况下进行检查:

1)满负荷操作100次后,应对负荷开关的主回路电阻及绝缘水平进行检查,并视情况可送制造厂大修;

2)无负荷操作10000次后,应对负荷开关的机构特性和机械操作进行检查。

2.定期记录SF6气体压力表指示数据,并根据SF6气体状态曲线,视情况及时补气,正常情况下不补气时间为15年。

定期检查环网柜是否有不正常情况,一经发现请及时采取措施。

运行人员应熟悉环网柜的所有部分,包括结构性能及安装等。

2.5使用与故障处理

2.5.1送电前检查

应全面检查环网柜的所有元件的电气性能、绝缘水平、接线正确性及防误操作的可靠性,检查后认为完好,接通电源,观察指示仪表的工作情况,若正常,可投入运行。

2.5.2正常运行时

负荷开关应在合闸位置,接地开关处于分闸位置,前门板处于闭合状态。

2.5.3电缆故障时

应先分闸该柜内的负荷开关,此时,可打开前门板入内检修。上部主母线处于带电状态,熔断器若需更换,仍按上述操作顺序进行。